Деаэратор ДА-5/8
Деаэратор ДА-5/8 предназначен для удаления коррозионно-агрессивных газов (кислорода и углекислоты) из питательной воды системы теплоснабжения при одновременном ее нагреве.
В нашем интернет-магазине вы можете купить Деаэратор ДА-5/8 по выгодной цене. Оформить заказ можно онлайн или по телефонам.
| Цена: | не указана |
Устройство и применение
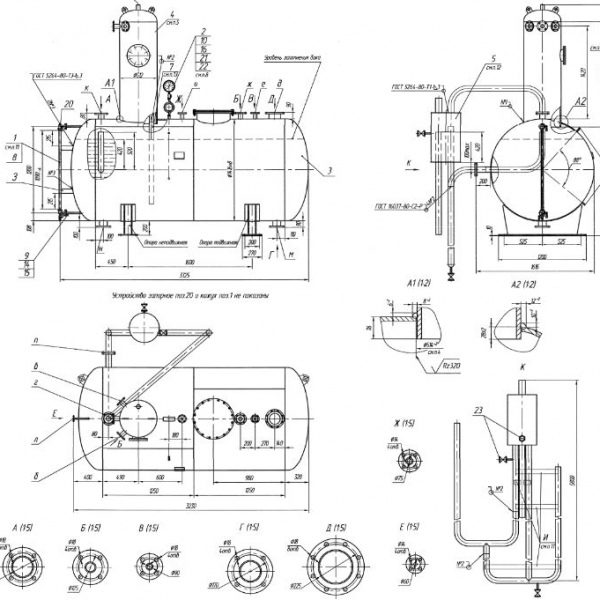
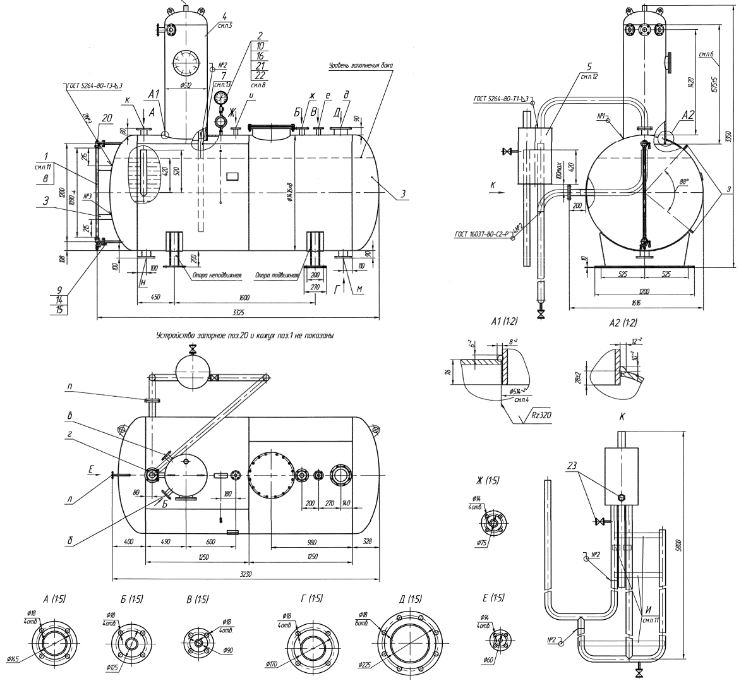
Деаэратор ДА-5/8 представляет собой горизонтальный или вертикальный, цилиндрический сосуд с эллиптическими днищами и патрубками входа и выхода рабочей среды, подключения трубопроводов и арматуры, в котором размещаются деаэрирующие элементы. Деаэратор ДА-5/8 имеет опоры. В деаэраторе ДА-5/8 предусмотрены патрубки для подключения комбинированного предохранительного устройства (гидрозатвора), состоящего из двух гидрозатворов, объединенных в гидравлическую систему, и расширительного бачка.
Вода для деаэрации поступает в деаэратор ДА-5/8 через распределительную трубу в верхнюю часть и через отверстия стекает струями на перфорированную тарелку, после сливается на лоток и в аккумулирующий объем деаэратора ДА-5/8, где находится затопленное барботажное устройство.
В барботажное устройство деаэратора ДА-5/8 подается греющий пар, проходя по каналу попадает в струйный отсек. Не сконденсировавшийся пар, насыщенный газами, отводится через патрубок на охладитель или в атмосферу. Температура пара, поступающего в бак, должна быть меньше 250°С.
В струйном отсеке колонки происходит нагрев воды до температуры, близкой к температуре насыщения, соответствующей давлению в колонке, осуществление грубой дегазации воды и конденсация большей части пара. Далее деаэрация воды в деаэраторе ДА-5/8 продолжается в затопленном барботажном устройстве за счет барботирования ее паром и последующего вскипания, обусловленного перегревом воды.
Условное обозначение
Деаэратор ДА-5/8, где:
- Д — деаэратор;
- А — атмосферный.
Эксплуатация и техническое обслуживание
Эксплуатация и техническое обслуживание деаэратора ДА-5/8 должно осуществляться квалифицированным персоналом.
Работа деаэратора ДА-5/8 осуществляется в автоматическом режиме при постоянном регулируемом давлении (0,12 МПа) и регулируемом уровне воды в баке. Пуск и остановка деаэратора проводится вручную.
Деаэратор ДА-5/8 должен работать непрерывно, периодическая работа не допускается.
Отключение деаэратора ДА-5/8 производится в соответствии с планом осмотров и ремонтов, действующим на объекте, и в аварийных ситуациях.
Кроме того, деаэратор ДА-5/8 должен отключаться:
- —при переполнении водой;
- —при появлении в нем гидравлических ударов.
Размещение и установка
Деаэратор ДА-5/8 предпочтительно располагать в помещении, допускается расположение на открытом воздухе в обоснованных случаях. Установка деаэратора ДА-5/8, комплектующих и обвязки их трубопроводами, а также схема установки приборов автоматического регулирования и контроля определяется проектной организацией в зависимости от условий, назначения и возможности объекта, на котором они устанавливаются.
Комплектация
В комплектацию паровых деаэратора ДА-5/8 входит все необходимое для полноценной работы агрегата: деаэраторный бак (БДА), колонка деаэрационная (КДА), ящик с комплектующими изделиями, гидрозатвор. Поставляется техническая документация: Паспорт (руководство по эксплуатации), Сборочный чертеж со спецификацией.
10 лет
на рынке
Описание достоинства
производственная
база
Описание достоинства
ассортимент
товаров
Описание достоинства
на все
товары
Описание достоинства
с выбором?
Деаэратор ДА-5/8 предназначен для удаления коррозионно-агрессивных газов (кислорода и углекислоты) из питательной воды системы теплоснабжения при одновременном ее нагреве.



















